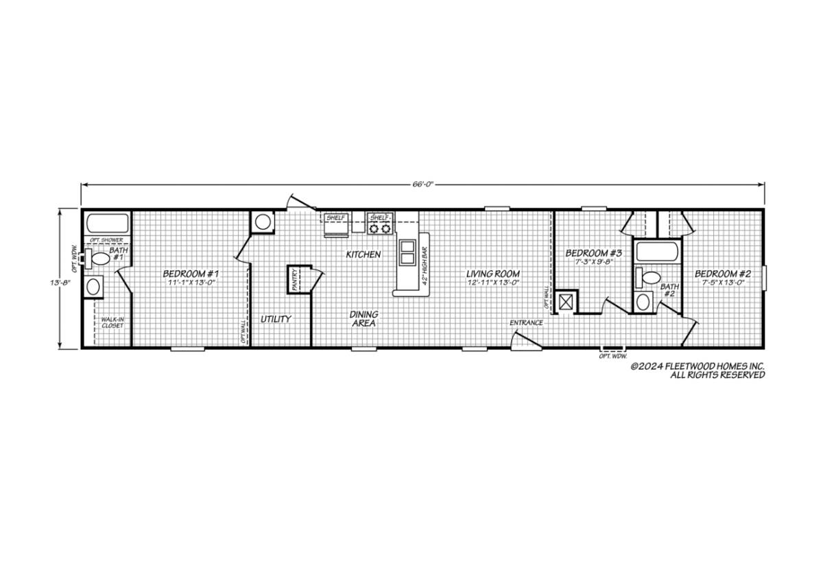
Welcome to your new Texas Single-wide by Fleetwood Mobile Homes The “ValuHomes 14663P“. The ValuHomes 14663P has 3 Bedrooms, 2 bathrooms and spans 902 square feet, offering a comfortable and versatile living space. With a width of feet and a length of feet, this home provides a balanced layout suitable for various locations and lifestyles.
Bedrooms
3
Bathrooms
2
SQFT
902
Width
Length
















