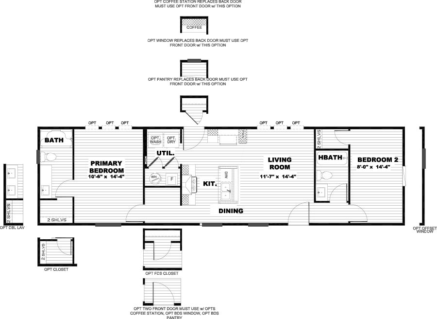
Welcome to your new Texas Single-wide by Clayton Miyo Bonham The “Spirit“. The Spirit has 2 Bedrooms, 2 bathrooms and spans 840 square feet, offering a comfortable and versatile living space. With a width of 16 feet and a length of 56 feet, this home provides a balanced layout suitable for various locations and lifestyles.
Bedrooms
2
Bathrooms
2
SQFT
840
Width
16
Length
56













