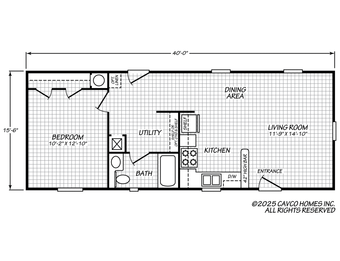
Welcome to your new Texas Single-wide by Fleetwood Mobile Homes The “Landmark 16401L“. The Landmark 16401L has 1 Bedrooms, 1 bathrooms and spans 620 square feet, offering a comfortable and versatile living space. With a width of feet and a length of feet, this home provides a balanced layout suitable for various locations and lifestyles.
Bedrooms
1
Bathrooms
1
SQFT
620
Width
Length


