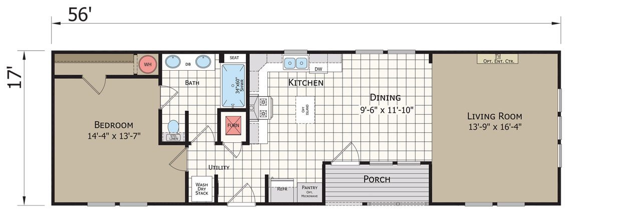
Welcome to your new Texas Single-wide by Champion Innovations The “IN1856H11024“. The IN1856H11024 has 1 Bedrooms, 1 bathrooms and spans 952 square feet, offering a comfortable and versatile living space. With a width of 18 feet and a length of 56 feet, this home provides a balanced layout suitable for various locations and lifestyles.
Bedrooms
1
Bathrooms
1
SQFT
952
Width
18
Length
56



















