Virtual Tour

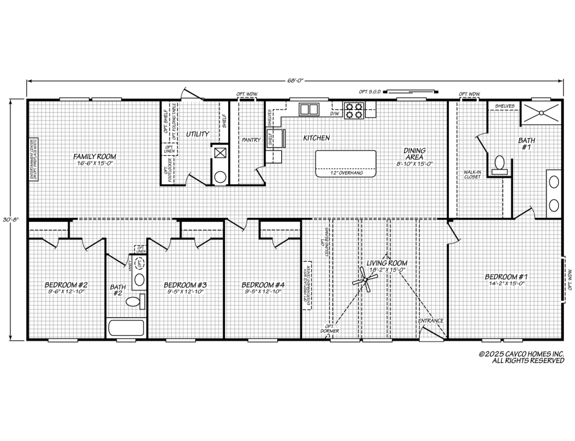
Welcome to your new Texas Double-wdie by Cavco Homes The “32684E“. The 32684E has 4 Bedrooms, 2 bathrooms and spans 2085 square feet, offering a comfortable and versatile living space. With a width of feet and a length of feet, this home provides a balanced layout suitable for various locations and lifestyles.

Bedrooms

4

Bathrooms

2

SQFT

2085

Width

Length

Condition

Home Type

Manufacturer

2025

Year Built

OUR HAPPY MOBILE HOME CUSTOMERS